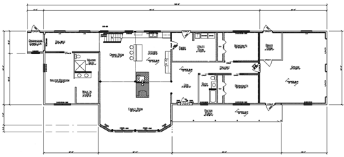
Architectural drawing of the 5421 log home plan.

5421

First Floor: 2286 sq ft
Loft: sq ft
Bedrooms: 3
Baths: 2
Garage: 624 sq ft
Porch: 240 sq ft

Price:

5421 Custom Log Home Plan

A log home plan that offers easy one-floor living, with the main rooms opening toward the porch and outdoor views. The master site sits at the end of the home for added privacy, with the two additional bedrooms and a full bath on the opposite side. A loft overlooking the great room gives you a quiet spot to read, work, or host extra overnight guests.

Have Questions? We’re here to help.

Like the 5421 plan but want to make a few changes? We can help you customize the layout, compare hybrid home and full log options, and discuss what’s included in a Ward package. If you’re still early in the process, it may also help to see how long it typically takes to build a log home. When you’re ready, contact us or call 800-341-1566.

Helpful Articles for Planning Your Log Home

First Floor

Features and Options

  • 12/12 Main Purlin Roof
  • 5/12 Truss Ells
  • 5/12 Truss Garage
  • Available as a hybrid home package or full log package
  • Custom layout changes available for all plans
  • Covered porch for welcoming entry
  • Lots of gable glass for natural light
  • Opening the main living area for gathering and easy traffic flow

 

More Plans in the Hybrid Series

Cedar log home with stone foundation and large windows featured on the cover of the Ward Planning Guide.

View Our Planning Guide

Please leave your name and email and we will contact you to answer any questions.

0

My Cart

Your cart is currently empty.