Architectural drawing of Madison log home front view

Madison

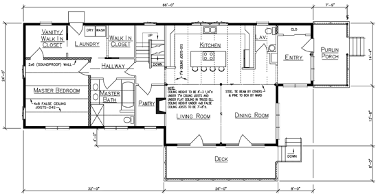
First Floor: 1608 sq ft
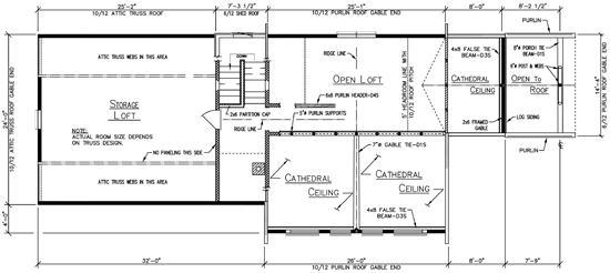
Loft: 560 sq ft
Bedrooms: 1-3
Baths: 1.5
Purlin Porch: 112 sq ft
Deck: 208 sq ft

Price: Request a quote based on your package style

Madison Hybrid Log Home Plan

The Madison log home offers mostly one-floor living with an open living, dining, and great room that makes it easy to gather and entertain. The kitchen sits at the heart of the home and features round ceiling joists that add warmth and character. A main floor bedroom and loft space give you flexible options for additional bedrooms, office space, or a quiet place to relax and read a book.

Have Questions? We’re here to help.

Like the Madison plan but want to make a few changes? We can help you customize the layout, compare hybrid home and full log options, and discuss what’s included in a Ward package. If you’re still early in the process, it may also help to see how long it typically takes to build a log home. When you’re ready, contact us or call 800-341-1566.

Helpful Articles for Planning Your Log Home

First Floor
Loft Plan

Features and Options

  • Available in both a hybrid home and a full log version
  • Custom layout changes available for all plans
  • 10/12 roof pitch
  • Open-concept great room, kitchen, and dining
  • Round exposed ceiling joists in the kitchen
  • Front purlin porch for welcoming entry
  • Optional walkout basement

More Plans in the Hybrid Series

Cedar log home with stone foundation and large windows featured on the cover of the Ward Planning Guide.

View Our Planning Guide

Please leave your name and email and we will contact you to answer any questions.

0

My Cart

Your cart is currently empty.