Front view of a single-level home with garage.

Eagle Lake

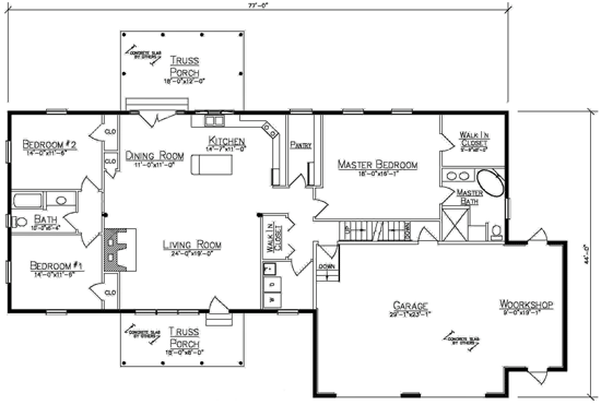
First Floor: 2037 sq ft
Loft: sq ft
Bedrooms: 3
Baths: 2
Garage : 838 sq ft
Porch: 360 sq ft

Price: Request a quote based on your package style

Eagle Lake

The Eagle Lake is a three bedroom ranch that keeps everything on one level. An open living and dining area sits between the bedrooms, making it easy to gather while still giving everyone some privacy. The attached garage with its own workshop is a good fit for tools, outdoor gear, and weekend projects that need extra space. Two porches add space to sit outside and enjoy your land.

Have Questions? We’re here to help.

Like the Eagle Lake plan but want to make a few changes? We can help you customize the layout, compare hybrid home and full log options, and discuss what’s included in a Ward package. If you’re still early in the process, it may also help to see how long it typically takes to build a log home. When you’re ready, contact us or call 800-341-1566.

Helpful Articles for Planning Your Log Home

First Floor

Features and Options

  • Available in both a hybrid home and a full log version
  • Custom layout changes available for all plans
  • Purlin and Truss Roof
  • Single-level living
  • Attached garage with workshop space for tools or storage
  • Open-concept great room, kitchen, and dining

More Plans in the Hybrid Series

Cedar log home with stone foundation and large windows featured on the cover of the Ward Planning Guide.

View Our Planning Guide

Please leave your name and email and we will contact you to answer any questions.

0

My Cart

Your cart is currently empty.