Sketch of a cedar log home with large windows and gable roof.

Sedona

First Floor: 1866 sq ft
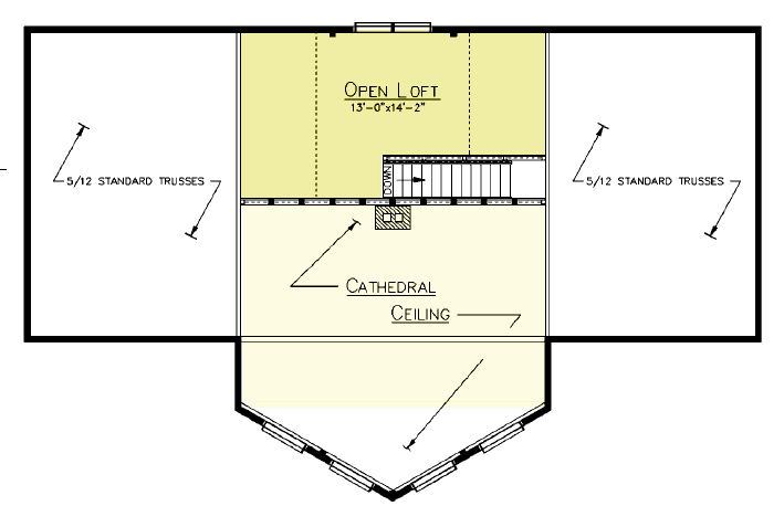
Loft: 164 sq ft
Bedrooms: 3-4
Baths: 2.5

Price: From $178,526 (Hybrid) or $196,315 (Log). From there, you can customize the details to fit your land and your goals.

Sedona Log Home Plan

The extraordinary prow-front architecture of the Sedona log home plan offers impressively large windows that flood the living area of this three-bedroom home with light.  Inside, the cathedral ceiling soars upward to the roof, where an open loft provides that personal space for you and your family.  The first floor features a master suite with its own private bath and walk-in closet, plus two additional bedrooms and a full bath. The kitchen and dining room lead to optional deck space perfect for entertaining family and friends.

Have Questions? We’re here to help.

Like the Sedona plan but want to make a few changes? We can help you customize the layout, compare hybrid home and full log options, and discuss what’s included in a Ward package. If you’re still early in the process, it may also help to see how long it typically takes to build a log home. When you’re ready, contact us or call 800-341-1566.

Helpful Articles for Planning Your Log Home

First Floor
Loft Plan

Features and Options

  • Prow Front
  • 9/12 Center roof
  • 5/12 Roof ells
  • Triangular gable windows
  • Optional rear deck
  • Available as a hybrid home package or full log package
  • Custom layout changes available for all plans

*ALL PRICES SUBJECT TO CHANGE WITHOUT NOTICE.

More Plans in the Premier Series

Cedar log home with stone foundation and large windows featured on the cover of the Ward Planning Guide.

View Our Planning Guide

Please leave your name and email and we will contact you to answer any questions.

0

My Cart

Your cart is currently empty.