Front view of East Grand cedar log home design.

East Grand

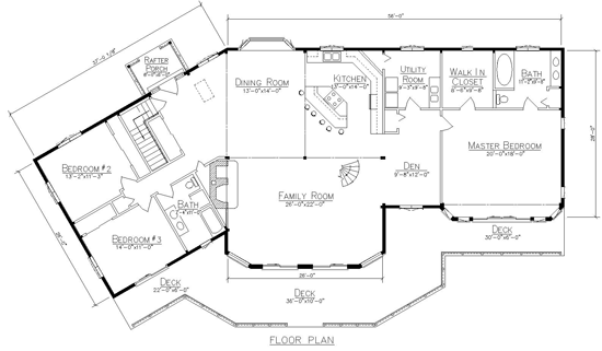
First Floor: 2520 sq ft
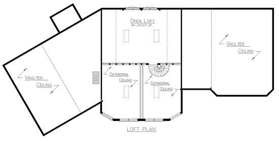
Loft: 468 sq ft
Bedrooms: 3
Baths: 2
Porch: 48 sq ft
Deck: 720 sq ft

Price: From $276,873 (Hybrid) or $297,245 (Log). From there, you can customize the details to fit your land and your goals.

East Grand

You’re looking at a home that took us decades to design.  We are very proud of the East Grand Model.  After all, when you’ve been in business as long as we have, you learn how to do things right, and we put everything we know into this design.  The floor plan is uniquely functional.  We’ve integrated passive solar, skylights, decks, and high-quality features, including Andersen Perma-Shield casement windows throughout. Everything possible has been engineered for easy maintenance, quality, and value.

Have Questions? We’re here to help.

Like the East Grand plan but want to make a few changes? We can help you customize the layout, compare hybrid home and full log options, and discuss what’s included in a Ward package. If you’re still early in the process, it may also help to see how long it typically takes to build a log home. When you’re ready, contact us or call 800-341-1566.

Helpful Articles for Planning Your Log Home

First Floor
Loft Plan

Features and Options

  • 12/12 Main roof pitch
  • 5/12 roof pitch for ells
  • Available in both a hybrid home and a full log version
  • Custom layout changes available for all plans
  • Loft space for guests or a quiet space
  • Deck and porch area to extend living outside

*ALL PRICES SUBJECT TO CHANGE WITHOUT NOTICE.

More Plans in the Premier Series

Cedar log home with stone foundation and large windows featured on the cover of the Ward Planning Guide.

View Our Planning Guide

Please leave your name and email and we will contact you to answer any questions.

0

My Cart

Your cart is currently empty.