Two-story log home with stone chimney and porch.

Vancouver

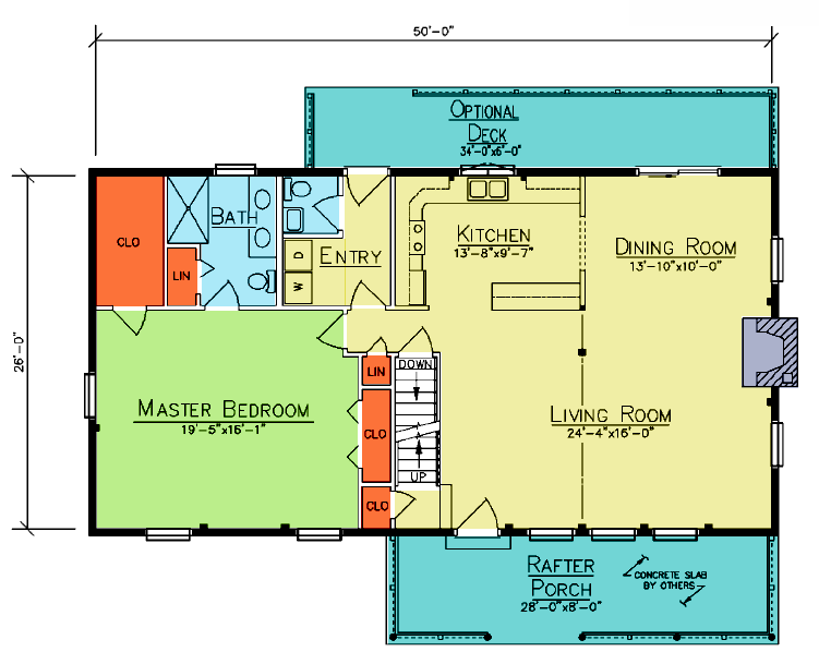
First Floor: 1300 sq ft
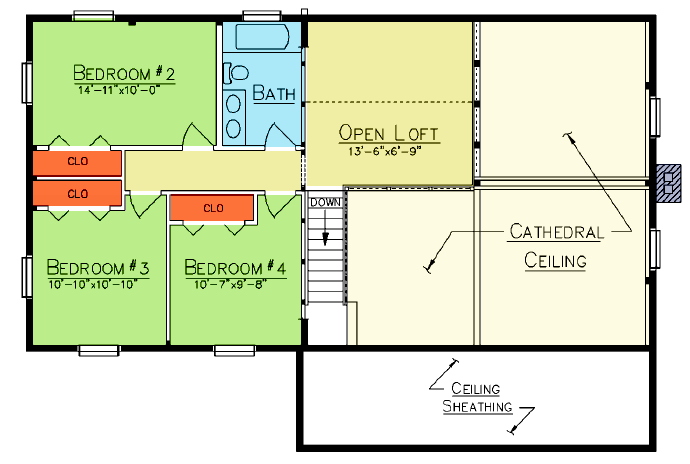
Loft: 667 sq ft
Bedrooms: 4
Baths: 2.5
Porch: 224 sq ft

Price: From $196,305 (Hybrid) or $222,501 (Log). From there, you can customize the details to fit your land and your goals.

Vancouver Log Home Plan

The Vancouver is a versatile home that can easily accommodate a large family or many guests with ease and comfort.  Stepping inside the home from the cozy front porch, you discover a large open kitchen, dining and living areas with cathedral ceiling.  The spacious master bedroom with its own full bath and walk-in closet is located slightly apart from the living space, creating a feeling of privacy.  On the second floor, there are three additional bedrooms, a full bath, and an open loft.

Have Questions? We’re here to help.

Like the Vancouver plan but want to make a few changes? We can help you customize the layout, compare hybrid home and full log options, and discuss what’s included in a Ward package. If you’re still early in the process, it may also help to see how long it typically takes to build a log home. When you’re ready, contact us or call 800-341-1566.

Helpful Articles for Planning Your Log Home

First Floor
Loft Plan

Features and Options

  • Full 2-Story bedroom section, 5/12 Truss Roof
  • 9/12 Roof living room ell
  • Cathedral ceiling living and dining Areas
  • Quarter-Round gable windows
  • First-floor laundry
  • Optional rear deck
  • Available as a hybrid home package or full log package
  • Custom layout changes available for all plans

*ALL PRICES SUBJECT TO CHANGE WITHOUT NOTICE. 

More Plans in the Premier Series

Cedar log home with stone foundation and large windows featured on the cover of the Ward Planning Guide.

View Our Planning Guide

Please leave your name and email and we will contact you to answer any questions.

0

My Cart

Your cart is currently empty.