Illustration of a cedar log home with dormers and large deck

Savannah

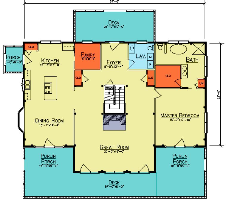
First Floor: 2040 sq ft
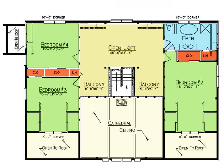
Loft: 1360 sq ft
Bedrooms: 4
Baths: 2.5
Porches: 304 sq ft
Decks: 706 sq ft

Price: From $341,218 (Hybrid) or $365,561 (Log). From there, you can customize the details to fit your land and your goals.

Savannah Log Home Plan

The Savannah log home plan is a spacious 3,400-square-foot cedar log home. Come home to grand style when you live in the gracious beauty of the Savannah.  Beautifully designed for family living while still offering private space, the Savannah boasts four bedrooms, two large full baths, and an additional washroom on the first floor.  The spacious kitchen is open to the dining room and also offers a pantry hidden behind a pocket door for storing all those extras out of sight. Families will love the cathedral ceiling great room that opens onto a large front deck.

Have Questions? We’re here to help.

Like the Savannah plan but want to make a few changes? We can help you customize the layout, compare hybrid home and full log options, and discuss what’s included in a Ward package. If you’re still early in the process, it may also help to see how long it typically takes to build a log home. When you’re ready, contact us or call 800-341-1566.

Helpful Articles for Planning Your Log Home

First Floor
Loft Plan

Features and Options

  • 12/12 Center Roof
  • 10/12 Ell Roofs
  • Two extra log rows add loft space in the center
  • Two gabled roof front dormers
  • Two shed roof rear dormers
  • This plan can be built as a hybrid home or a full log home
  • Custom layout changes available for all plans

*ALL PRICES SUBJECT TO CHANGE WITHOUT NOTICE.

More Plans in the Premier Series

Cedar log home with stone foundation and large windows featured on the cover of the Ward Planning Guide.

View Our Planning Guide

Please leave your name and email and we will contact you to answer any questions.

0

My Cart

Your cart is currently empty.