Chalet style log home with stone chimney and balcony.

Riverton

First Floor: 896 sq ft
Loft: 265 sq ft
Bedrooms: 2
Baths: 1
Deck: 168 sq ft

Price: From $116,331 (Hybrid) or $132,330 (Log). From there, you can customize the details to fit your land and your goals.

Riverton Log Home Plan

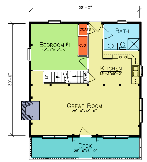
The Riverton is a 1,105 square foot cedar log home where the chalet-style home’s windows and deck space allow you to take advantage of the scenery.  It would be nicely situated in the mountains as a vacation retreat or in the suburbs as an efficient year-round home.  When you enter the Riverton, you are greeted by the impressive cathedral ceiling, great room, a wonderful place to entertain and have family gatherings.  A spacious kitchen abuts a full bath with a bedroom tucked into the corner of the first floor.  A bedroom located on the second floor completes the home.

Have Questions? We’re here to help.

Like the Riverton plan but want to make a few changes? We can help you customize the layout, compare hybrid home and full log options, and discuss what’s included in a Ward package. If you’re still early in the process, it may also help to see how long it typically takes to build a log home. When you’re ready, contact us or call 800-341-1566.

Helpful Articles for Planning Your Log Home

First Floor
Loft Plan

Features and Options

  • False balcony
  • 9/12 Roof
  • Three extra rows of logs can be added to increase the loft space
  • Outswept roof overhang on front
  • Cathedral ceiling living area
  • This plan can be built as a hybrid home or a full log home
  • Custom layout changes available for all plans

*ALL PRICES SUBJECT TO CHANGE WITHOUT NOTICE. 

More Plans in the Premier Series

Cedar log home with stone foundation and large windows featured on the cover of the Ward Planning Guide.

View Our Planning Guide

Please leave your name and email and we will contact you to answer any questions.

0

My Cart

Your cart is currently empty.