Illustration of a log home with wrap-around porch and garage

Princeton

First Floor: 1360 sq ft
Loft: 617 sq ft
Bedrooms: 4
Baths: 2
Garage: 672 sq ft

Price: From $260,996 (Hybrid) or $289,671 (Log). From there, you can customize the details to fit your land and your goals.

Princeton Log Home Plan

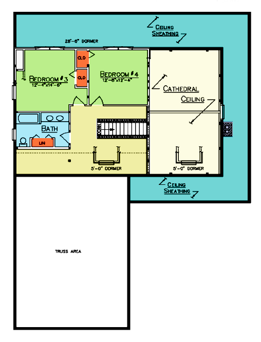
The Princeton is a 1,977 square foot log home with a graceful design that would be perfect in a mountain setting, as it would be in a tree-lined neighborhood.  The wraparound rafter porch is a charming addition to the home’s exterior, while the attached garage provides comfort and convenience.  Inside, the dining/living room is adjacent to the kitchen, and there is a full bath located between the master bedroom and an additional bedroom or office.  Dormers on the upper floor allow light to fill the upstairs, as well as the cathedral-ceiling living room.  The second floor also features a full bath and two additional bedrooms.

Have Questions? We’re here to help.

Like the Princeton plan but want to make a few changes? We can help you customize the layout, compare hybrid home and full log options, and discuss what’s included in a Ward package. If you’re still early in the process, it may also help to see how long it typically takes to build a log home. When you’re ready, contact us or call 800-341-1566.

Helpful Articles for Planning Your Log Home

First Floor
Loft Plan

Features and Options

  • Wrap-Around 3/12 Rafter porches
  • 28 Ft. – 6 in. Shed roof, 4/12 Rear dormer
  • Two front gabled dormers
  • 10/12 House
  • 6/12 Truss garage
  • Offered as either a hybrid home package or a full log package
  • Custom layout changes available for all plans

*ALL PRICES SUBJECT TO CHANGE WITHOUT NOTICE. 

More Plans in the Premier Series

Cedar log home with stone foundation and large windows featured on the cover of the Ward Planning Guide.

View Our Planning Guide

Please leave your name and email and we will contact you to answer any questions.

0

My Cart

Your cart is currently empty.