Sketch of a log home with large windows and a deck.

Point Judith

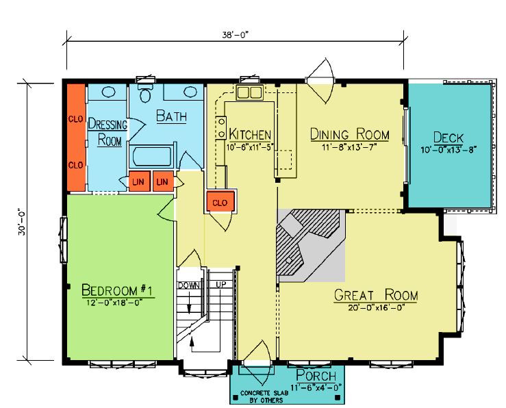
First Floor: 1230 sq ft
Loft: 677 sq ft
Bedrooms: 3
Baths: 2
Porch: 46 sq ft
Deck: 137 sq ft

Price: From $211,048 (Hybrid) or $233,199 (Log). From there, you can customize the details to fit your land and your goals.

Point Judith Log Home Plan

The Point Judith is a 1,907 square foot cedar log home that is ideal for a growing family. This beautiful three-bedroom home would be wonderful in a suburban or lakeside setting. The cathedral ceiling family room features a wall of glass, allowing warmth and light to enter the home. Tucked off to the side on the first floor, the spacious master bedroom has its own private bath and dressing room. The skylighted loft space could easily represent your personal library or den area, and the deck located off of the dining room provides a great place to entertain friends and family.

Have Questions? We’re here to help.

Like the Point Judith plan but want to make a few changes? We can help you customize the layout, compare hybrid home and full log options, and discuss what’s included in a Ward package. If you’re still early in the process, it may also help to see how long it typically takes to build a log home. When you’re ready, contact us or call 800-341-1566.

Helpful Articles for Planning Your Log Home

First Floor
Loft Plan

Features and Options

  • Casement-style windows
  • 12/12 Roof
  • Passive solar design
  • 8 Ft. Shed roof, 3/12 Rear dormer
  • Offered as either a hybrid home package or a full log package
  • Custom layout changes available for all plans

*ALL PRICES SUBJECT TO CHANGE WITHOUT NOTICE

More Plans in the Premier Series

Cedar log home with stone foundation and large windows featured on the cover of the Ward Planning Guide.

View Our Planning Guide

Please leave your name and email and we will contact you to answer any questions.

0

My Cart

Your cart is currently empty.