Your cart is currently empty.
Price: Request a quote based on your package style
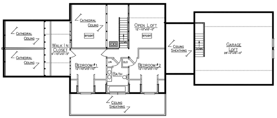
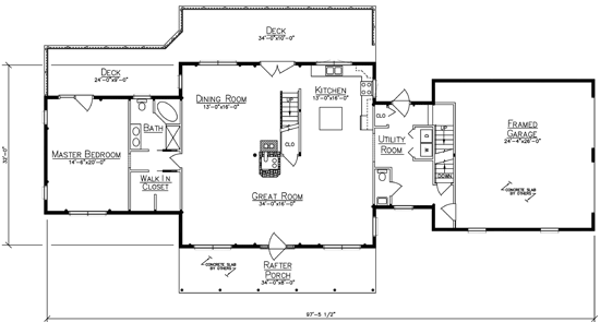
The Norway was designed with easy living in mind. Spacious for families who want both comfort and gathering space. The first floor centers around the kitchen and dining area, which leads out to a large front porch and deck in the back for outdoor living. A private master bedroom with a walk-in closet and bath is located on the main level. Upstairs, two additional bedrooms, a shared bath, and an open loft area provide extra room for guests, hobbies, or relaxing.
Like the Norway plan but want to make a few changes? We can help you customize the layout, compare hybrid home and full log options, and discuss what’s included in a Ward package. If you’re still early in the process, it may also help to see how long it typically takes to build a log home. When you’re ready, contact us or call 800-341-1566.
Please leave your name and email and we will contact you to answer any questions.
Your cart is currently empty.