Illustration of a log cabin with a large porch and windows

5333

First Floor: 636 sq ft
Loft: 354 sq ft
Bedrooms: 3
Baths: 1.5

Price: Request a quote based on your package style

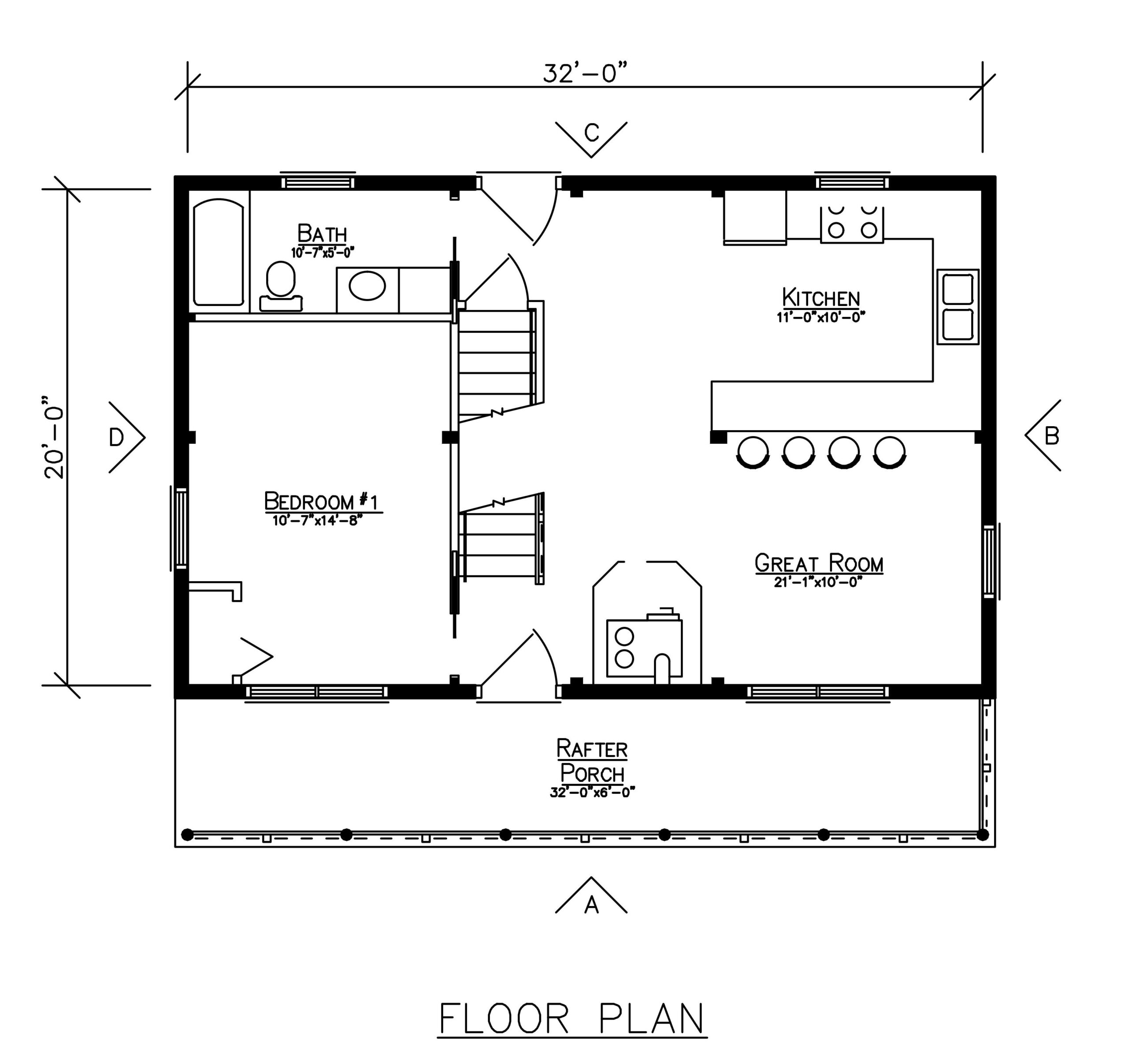
5333 Log Home Plan

The 5333 log home plan is a cozy home with a simple footprint and a full front porch that invites you to sit and stay awhile. Inside, the first floor has an open kitchen and great room with a main-floor bedroom and bath close by. In the loft, two additional bedrooms and an open loft overlook the living area, giving you flexible space for kids, guests, or a quiet reading nook.

Have Questions? We’re here to help.

Like this plan but want to make a few changes? We can help you customize the layout, compare hybrid home and full log options, and discuss what’s included in a Ward package. If you’re still early in the process, it may also help to see how long it typically takes to build a log home. When you’re ready, contact us or call 800-341-1566.

Helpful Articles for Planning Your Log Home

First Floor
Loft Plan

Features and Options

  • 12/12 Pitch
  • This plan can be built as a hybrid home or a full log home
  • Compact footprint
  • Open great room and kitchen
  • Full-width front rafter porch
  • Well suited for camps, getaway cabins, or smaller primary homes
  • Custom layout changes available for all plans

More Plans in the Personalized Homes

Cedar log home with stone foundation and large windows featured on the cover of the Ward Planning Guide.

View Our Planning Guide

Please leave your name and email and we will contact you to answer any questions.

0

My Cart

Your cart is currently empty.