Illustration of a large log home with multiple windows and a stone foundation.

5346

First Floor: 2713 sq ft
Loft: sq ft
Bedrooms: 3
Baths: 3

Price: Request a quote based on your package style

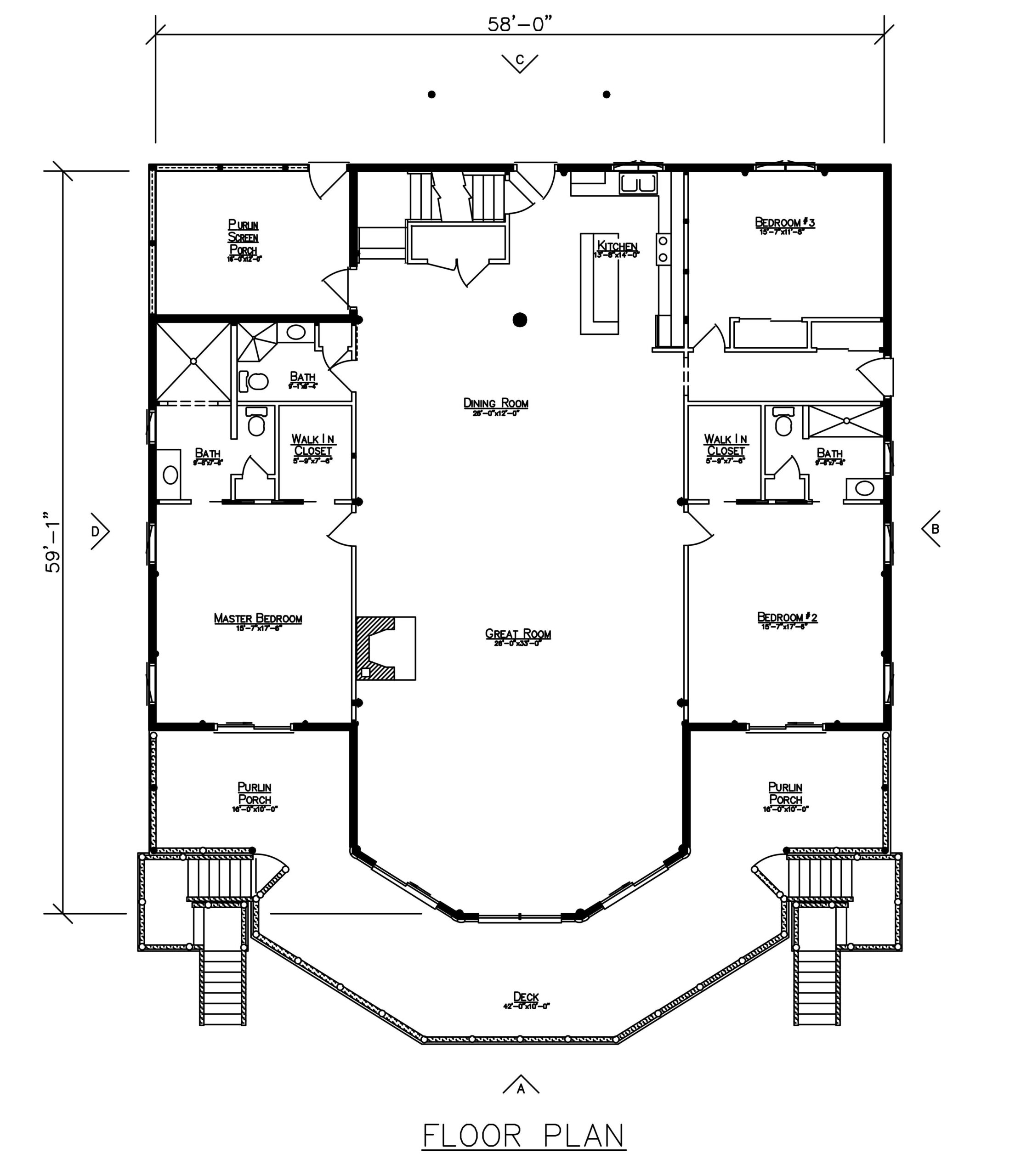
5346 Log Home Plan

The 5346 log home floor plan offers comfortable family living with soaring cathedral ceilings that create an open, airy feel throughout. On the main floor, the great room, dining area, and kitchen flow together for easy gatherings, while the master suite provides a private retreat with a walk-in closet and full bath.

Two additional bedrooms, each with its own walk-in closet and bath, ensure everyone has their own space and privacy. Upstairs, the open loft overlooks the great room below and includes a generous storage area and a front balcony. Outside, porches and a deck expand your living space for enjoying the outdoors.

Have Questions? We’re here to help.

Like this plan but want to make a few changes? We can help you customize the layout, compare hybrid home and full log options, and discuss what’s included in a Ward package. If you’re still early in the process, it may also help to see how long it typically takes to build a log home. When you’re ready, contact us or call 800-341-1566.

Helpful Articles for Planning Your Log Home

First Floor
Loft Plan

Features and Options

  • Available as a hybrid home package or full log package
  • Spacious open-concept living area with cathedral ceilings
  • Northern White Cedar construction throughout
  • Open loft overlooking the main living space
  • Front porches
  • Large deck
  • Large windows to maximize natural light and views
  • Optional walk-out or daylight basement
  • Custom layout changes available for all plans

More Plans in the Personalized Homes

Cedar log home with stone foundation and large windows featured on the cover of the Ward Planning Guide.

View Our Planning Guide

Please leave your name and email and we will contact you to answer any questions.

0

My Cart

Your cart is currently empty.