Illustration of North Star log home exterior with deck.

North Star

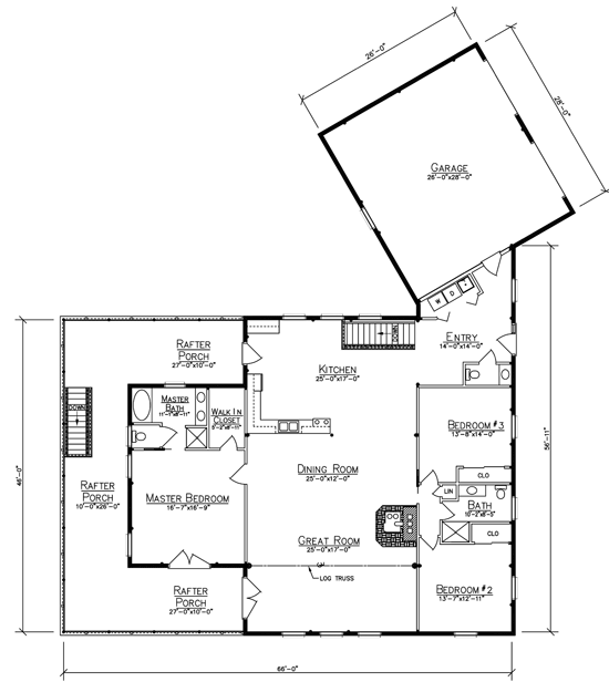
First Floor: 2315 sq ft
Loft: Not Included sq ft
Bedrooms: 3
Baths: 2.5
Porches: 820 sq ft

Price: Request a quote based on your package style

North Star Log Home Plan

The North Star log home plan features three bedrooms and two baths, and is beautifully designed. This home is perfect for families, retirees, or anyone looking for a cozy yet spacious retreat.

From the moment you step inside, you’re welcomed by cathedral ceilings and an open-concept living area that invites natural light to pour in, creating a warm and inviting space. The primary suite offers privacy and convenience, while the other two bedrooms are on the other side of the home.

Have Questions? We’re here to help.

Like this plan but want to make a few changes? We can help you customize the layout, compare hybrid home and full log options, and discuss what’s included in a Ward package. If you’re still early in the process, it may also help to see how long it typically takes to build a log home. When you’re ready, contact us or call 800-341-1566.

Helpful Articles for Planning Your Log Home

First Floor

Features and Options

  • 8/12 Main Purlin Roof
  • 5/12 Truss Garage
  • Cathedral Great Room ceiling with exposed beams
  • Open kitchen-dining-living flow
  • Customizable plan
  • Available in both a hybrid home and a full log version

More Plans in the Personalized Homes

Cedar log home with stone foundation and large windows featured on the cover of the Ward Planning Guide.

View Our Planning Guide

Please leave your name and email and we will contact you to answer any questions.

0

My Cart

Your cart is currently empty.