Illustration of the Norfolk log home front view with large windows.

Norfolk

First Floor: 1752 sq ft
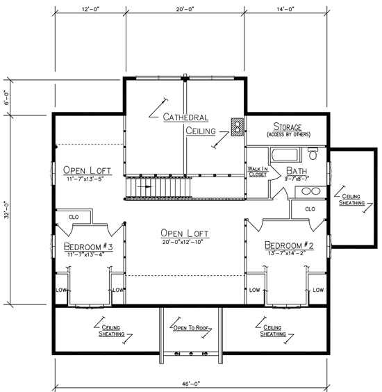
Loft: 849 sq ft
Bedrooms: 3
Baths: 2.5
Purlin Porch: 80 sq ft
Rafter Porch: 288 sq ft
Deck: 228 sq ft

Price: Request a quote based on your package style

Norfolk Log Home Floor Plan

This home offers ample space for families who enjoy gathering and entertaining.  The first floor features an open living, dining, and kitchen area with the master suite close by for convenient one-level living. Upstairs, two additional bedrooms, a full bath, and a loft provide extra space for family members or guests.  Large gable windows allow natural light to flow through the home.

Have Questions? We’re here to help.

Like the Norfolk plan but want to make a few changes? We can help you customize the layout, compare hybrid home and full log options, and discuss what’s included in a Ward package. If you’re still early in the process, it may also help to see how long it typically takes to build a log home. When you’re ready, contact us or call 800-341-1566.

Helpful Articles for Planning Your Log Home

First Floor
Loft Plan

Features and Options

  • 12/12 Purlin Roof
  • 12/12 Purlin Gable Dormers
  • Open loft
  • Main level Master Suite
  • This plan can be built as a hybrid home or a full log home
  • Fully Customizable plans

 

More Plans in the Personalized Homes

Cedar log home with stone foundation and large windows featured on the cover of the Ward Planning Guide.

View Our Planning Guide

Please leave your name and email and we will contact you to answer any questions.

0

My Cart

Your cart is currently empty.