Sketch of Lexington log home with trees and porch

Lexington

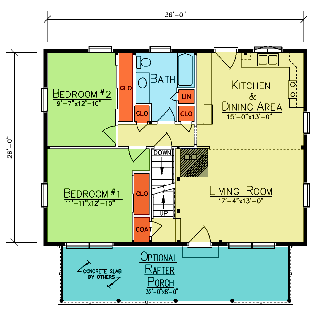
First Floor: 936 sq ft
Loft: 450 sq ft
Bedrooms: 3
Baths: 2
Porch: 256 sq ft

Price: From $136,903 (Hybrid) or $151,594 (Log). From there, you can customize the details to fit your lifestyle, land, and your budget.

Lexington Log Home Plan

The Lexington is a 1,386 square foot cedar log home plan that features an optional rafter porch to give it a traditional log home feel, while its comfortable floor plan is designed for contemporary living.  The spacious living room with cathedral ceiling is open to the kitchen and dining room, giving the home an inviting atmosphere while maintaining efficiency.  The two bedrooms located on the first floor share a full bath with ample closet space.  The second floor is dominated by a large master bedroom, full bath and plenty of storage space.

Have Questions? We’re here to help.

Like the Lexington plan but want to make a few changes? We can help you customize the layout, compare hybrid home and full log options, and discuss what’s included in a Ward package. If you’re still early in the process, it may also help to see how long it typically takes to build a log home. When you’re ready, contact us or call 800-341-1566.

Helpful Articles for Planning Your Log Home

First Floor
Loft Plan

Features and Options

  • 10/12 Roof
  • 9 Ft. Rear dormer, 3/12 Shed roof
  • Optional front porch
  • Available in both a hybrid home and a full log version
  • Custom layout changes available for all plans

*ALL PRICES SUBJECT TO CHANGE WITHOUT NOTICE

More Plans in the Premier Series

Cedar log home with stone foundation and large windows featured on the cover of the Ward Planning Guide.

View Our Planning Guide

Please leave your name and email and we will contact you to answer any questions.

0

My Cart

Your cart is currently empty.