Illustration of a log home with stone chimney and porch.

Kingswood

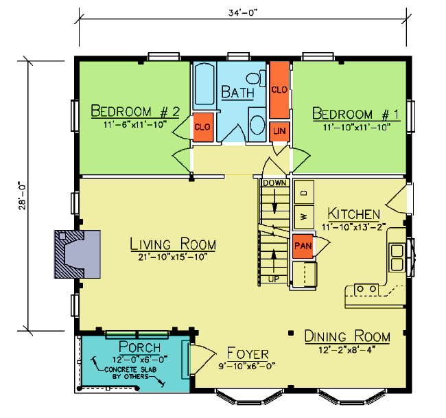
First Floor: 1084 sq ft
Loft: 520 sq ft
Bedrooms: 3
Baths: 2
Porch: 72 sq ft

Price: From $166,069 (Hybrid) or $181,563 (Log). From there, you can customize the details to fit your lifestyle, land, and your budget.

Kingswood Log Home Plan

The Kingswood is a 1,604 square foot cedar log home, suitable for any location that offers a thoughtful layout. Entering the home from the cozy front porch, you’ll find an impressively open living/dining room area with a cathedral ceiling and convenient kitchen. Two bedrooms, a full bath and laundry facilities round out the first-floor plan. The spacious master bedroom, complete with deluxe master bath and his and hers walk-in closets, occupies much of the second floor.

Have Questions? We’re here to help.

Like the Kingswood plan but want to make a few changes? We can help you customize the layout, compare hybrid home and full log options, and discuss what’s included in a Ward package. If you’re still early in the process, it may also help to see how long it typically takes to build a log home. When you’re ready, contact us or call 800-341-1566.

Helpful Articles for Planning Your Log Home

>

First Floor
Loft Plan

Features and Options

  • Saltbox Roof
  • Cathedral ceiling living room
  • Multi-Use open loft
  • Twin angled bay windows
  • Open foyer
  • Available in both a hybrid home and a full log version
  • Custom layout changes available for all plans

*ALL PRICES SUBJECT TO CHANGE WITHOUT NOTICE. 

More Plans in the Premier Series

Cedar log home with stone foundation and large windows featured on the cover of the Ward Planning Guide.

View Our Planning Guide

Please leave your name and email and we will contact you to answer any questions.

0

My Cart

Your cart is currently empty.