Front view of Kings Landing log home with garage

Kings Landing

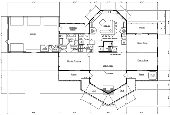
First Floor: 2960 sq ft
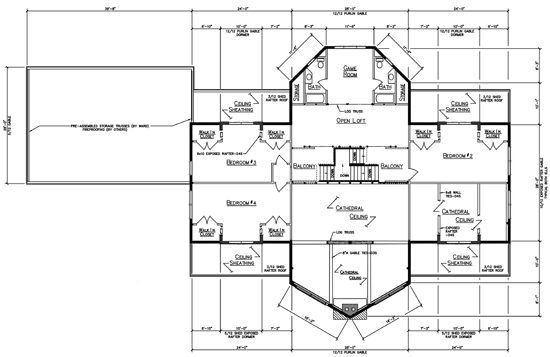
Loft: 1740 sq ft
Bedrooms: 4
Baths: 3.5
Garage: 1120 sq ft

Price: Request a quote based on your package style

Kings Landing Log Home Plan

With its large scale, the Kings Landing suits a busy family that likes to have people over. The first floor has a big kitchen that opens into the living and dining areas, so meals and conversations can stay in one place. Upstairs, there are three bedrooms, two baths, and a game room that gives kids and guests their own corner of the house. An attached garage and outdoor areas add everyday convenience and extra room to relax.

Have Questions? We’re here to help.

Like the Kings Landing plan but want to make a few changes? We can help you customize the layout, compare hybrid home and full log options, and discuss what’s included in a Ward package. If you’re still early in the process, it may also help to see how long it typically takes to build a log home. When you’re ready, contact us or call 800-341-1566.

Helpful Articles for Planning Your Log Home

 

First Floor
Loft Plan

Features and Options

  • 12/12 main house roof with purlins
  • Attached three-bay garage with a tool room
  • Main level master suite with a walk-in closet
  • Loft-level game room
  • Offered as either a hybrid home package or a full log package
  • Customizable plan

More Plans in the Personalized Homes

Cedar log home with stone foundation and large windows featured on the cover of the Ward Planning Guide.

View Our Planning Guide

Please leave your name and email and we will contact you to answer any questions.

0

My Cart

Your cart is currently empty.