Illustration of the Indy log home with porch and stone chimney.

Indy

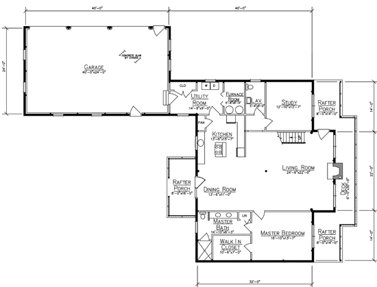
First Floor: 1786 sq ft
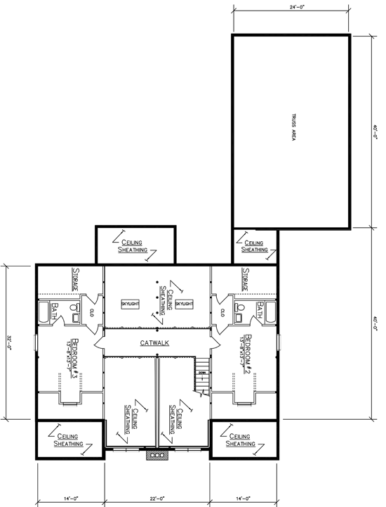
Loft: 650 sq ft
Bedrooms: 3
Baths: 3.5
Garage : 960 sq ft
Porches: 352 sq ft
Deck: 180 sq ft

Price: Request a quote based on your package style

Indy Log Home Plan

The Indy has many things to offer.  It brings together an open main living area with three large bedrooms, each with its own bath. A nearby study can serve as a home office or easily convert to a fourth bedroom as your needs change. The attached garage makes life easier, with direct access into the kitchen for bringing in groceries and gear.

Have Questions? We’re here to help.

Like the Indy plan but want to make a few changes? We can help you customize the layout, compare hybrid home and full log options, and discuss what’s included in a Ward package. If you’re still early in the process, it may also help to see how long it typically takes to build a log home. When you’re ready, contact us or call 800-341-1566.

Helpful Articles for Planning Your Log Home

First Floor
Loft Plan

Features and Options

  • Available in both a hybrid home and a full log version
  • 12/12 Main Purlin Roof
  • 10/12 Purlin Ells
  • 6/12 Truss Garage
  • 3 large bedrooms with its own private bath
  • Covered porch and rear deck for outdoor living
  • Fully customizable plan

More Plans in the Personalized Homes

Cedar log home with stone foundation and large windows featured on the cover of the Ward Planning Guide.

View Our Planning Guide

Please leave your name and email and we will contact you to answer any questions.

0

My Cart

Your cart is currently empty.