Illustration of a log home with a salt box roof and deck.

Hickory

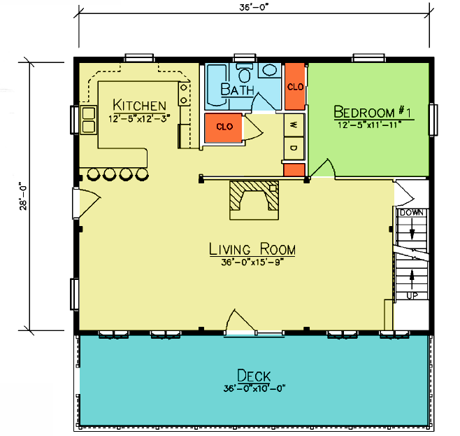
First Floor: 1008 sq ft
Loft: 636 sq ft
Bedrooms: 3
Baths: 2
Rear Balcony: 216 sq ft
Deck: 360 sq ft

Price: From $188,733 (Hybrid) or $203,424 (Log). From there, you can customize the details to fit your land and your goals.

Hickory Log Home Plan

The Hickory is a 1,644 square foot log home that is a comfortable-styled home offering many extras. The front deck coupled with numerous windows and skylights allow you to enjoy the outdoors while light floods the interior of your home. The Hickory also features a full kitchen with a snack bar and cathedral ceiling living/dining space. The first-floor bedroom is located adjacent to a full bath that has ample storage space and laundry facilities. The bedrooms on the second floor share a full bath and have their own walk-in closet space. A charming full balcony looks down on the first floor below.

Have Questions? We’re here to help.

Like the Hickory plan but want to make a few changes? We can help you customize the layout, compare hybrid home and full log options, and discuss what’s included in a Ward package. If you’re still early in the process, it may also help to see how long it typically takes to build a log home. When you’re ready, contact us or call 800-341-1566.

Helpful Articles for Planning Your Log Home

First Floor
Loft Plan

Features and Options

  • Salt Box roof
  • Cathedral ceiling living room
  • First-floor laundry
  • Large indoor and outdoor balconies
  • Living Room skylights
  • Available as a hybrid home package or full log package
  • Custom layout changes available for all plans

*ALL PRICES SUBJECT TO CHANGE WITHOUT NOTICE. 

More Plans in the Premier Series

Cedar log home with stone foundation and large windows featured on the cover of the Ward Planning Guide.

View Our Planning Guide

Please leave your name and email and we will contact you to answer any questions.

0

My Cart

Your cart is currently empty.