Sketch of Georgetown log home with large deck and chimney

Georgetown

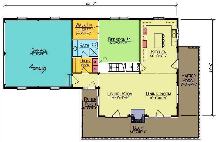
First Floor: 1185 sq ft
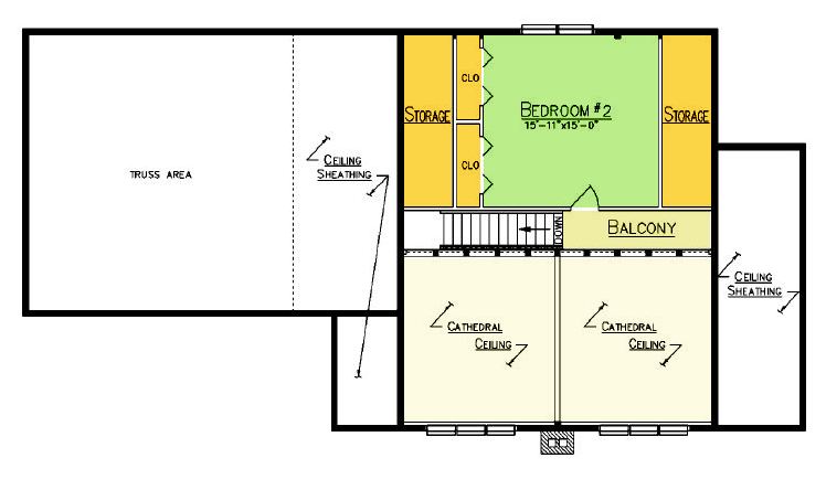
Loft: 315 sq ft
Bedrooms: 2
Baths: 1
Porches: 252 sq ft
Deck: 336 sq ft

Price: From $204,192 (Hybrid) or $226,216 (Log). From there, you can customize the details to fit your land and your goals.

Georgetown Log Home Plan

The Georgetown is a 1,500 square foot cedar log home where the beauty of the floor plan lies in its convenient one-floor living, coupled with the added space of a large second bedroom upstairs. Peer down from the second-floor balcony into the living and dining area, where the soaring cathedral ceiling and hearth create a feeling of both coziness and grandeur. The two porches connected by a large deck complete the exterior look of the log home and offer ample space for entertaining and outdoor living.

Have Questions? We’re here to help.

Like the Georgetown plan but want to make a few changes? We can help you customize the layout, compare hybrid home and full log options, and discuss what’s included in a Ward package. If you’re still early in the process, it may also help to see how long it typically takes to build a log home. When you’re ready, contact us or call 800-341-1566.

Helpful Articles for Planning Your Log Home

First Floor
Loft Plan

Features and Options

  • 12/12 House roof
  • 6/12 Truss utility & garage
  • Large walk-in closet
  • First-floor master suite
  • This plan can be built as a hybrid home or a full log home
  • Custom layout changes available for all plans

*ALL PRICES SUBJECT TO CHANGE WITHOUT NOTICE.

More Plans in the Premier Series

Cedar log home with stone foundation and large windows featured on the cover of the Ward Planning Guide.

View Our Planning Guide

Please leave your name and email and we will contact you to answer any questions.

0

My Cart

Your cart is currently empty.