Illustration of Enon Valley log home exterior.

Enon Valley

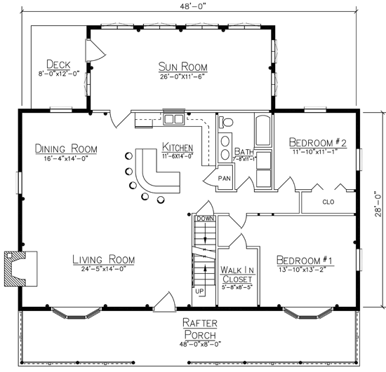
First Floor: 1344 sq ft
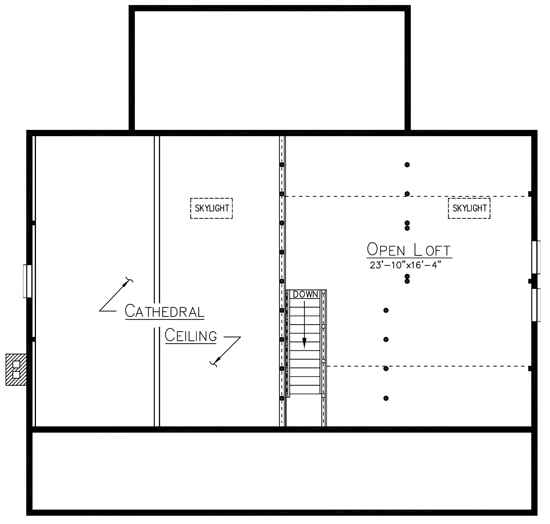
Loft: 384 sq ft
Bedrooms: 2
Baths: 1
Porch: 384 sq ft
Deck : 96 sq ft

Price:

Enon Valley

The Enon Valley offers an easygoing layout with an open living space that leads right into a large sunroom. The first floor keeps daily living all on one level, with two bedrooms and a full bath. Upstairs, enjoy an open loft that works well for a play area, reading nook, or extra sleeping space for when family and friends come to visit.

 

Have Questions? We’re here to help.

Like the Enon Valley plan but want to make a few changes? We can help you customize the layout, compare hybrid home and full log options, and discuss what’s included in a Ward package. If you’re still early in the process, it may also help to see how long it typically takes to build a log home. When you’re ready, contact us or call 800-341-1566.

Helpful Articles for Planning Your Log Home

First Floor
Loft Plan

Features and Options

  • Available as a hybrid home package or full log package
  • 10/12 Purlin Roof
  • Large sunroom for dining, relaxing, or taking in views
  • Covered Porch
  • Loft space for a play area, reading nook, or sleeping space
  • Custom layout changes available for all plans

More Plans in the Personalized Homes

Cedar log home with stone foundation and large windows featured on the cover of the Ward Planning Guide.

View Our Planning Guide

Please leave your name and email and we will contact you to answer any questions.

0

My Cart

Your cart is currently empty.