Illustration of the Edgewater log home front view.

Edgewater

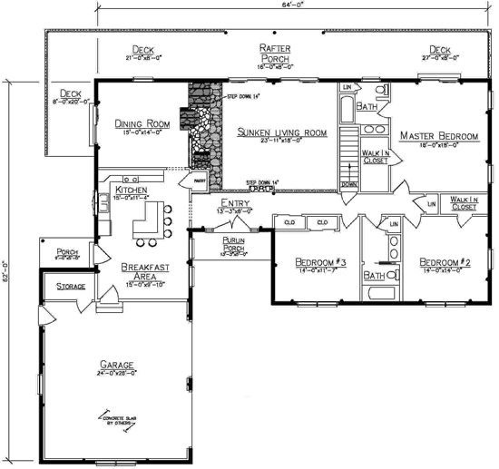
First Floor: 2181 sq ft
Loft: N/A sq ft
Bedrooms: 3
Baths: 2
Purlin Porch: 81 sq ft
Rafter Porch: 173 sq ft
Decks: 920 sq ft

Price: Request a quote based on your package style

Edgewater Log Home Plan

The Edgewater is as cozy as it gets with a large sunken living room centered around a double-sided fireplace. The open layout makes it easy to move between the kitchen, dining, and living areas, whether you are hosting friends or enjoying a quiet evening in. Three bedrooms and a large porch and deck space give this home the feel of a comfortable retreat you can enjoy all year round.

 

Have Questions? We’re here to help.

Like the Edgewater plan but want to make a few changes? We can help you customize the layout, compare hybrid home and full log options, and discuss what’s included in a Ward package. If you’re still early in the process, it may also help to see how long it typically takes to build a log home. When you’re ready, contact us or call 800-341-1566.

Helpful Articles for Planning Your Log Home

First Floor

Features and Options

  • Available in both a hybrid home and a full log version
  • Truss Roof
  • Open kitchen, dining, and living areas for easy gathering
  • Large rear deck
  • Custom layout changes available for all plans

More Plans in the Personalized Homes

Cedar log home with stone foundation and large windows featured on the cover of the Ward Planning Guide.

View Our Planning Guide

Please leave your name and email and we will contact you to answer any questions.

0

My Cart

Your cart is currently empty.