Sketch of Darlington log home with wrap-around deck.

Darlington

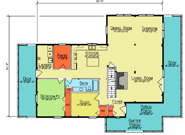
First Floor: 1756 sq ft
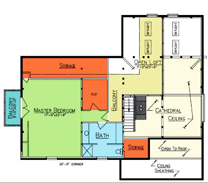
Loft: 910 sq ft
Bedrooms: 2-3
Baths: 2
Purlin Porch: 96 sq ft
Rafter Porch: 144 sq ft
Decks: 568 sq ft

Price: From $276,666 (Hybrid) or $301,014 (Log). From there, you can customize the details to fit your land and your goals.

Darlington Log Home Plan

The Darlington is a 2,666 square foot log home that combines tradition and innovation. The wrap-around deck allows for enjoyment of the outdoors, while the sunroom, tucked away in the back, provides a place to enjoy the day in comfort. The spacious kitchen offers a large pantry and easy access to the dining room. The large, open living room gives the first floor a comfortable, homey feeling. A full bath, study and bedroom complete the first-floor plan. The second floor is dominated by the master bedroom with its luxurious full bath and open loft.

Have Questions? We’re here to help.

Like the Darlington plan but want to make a few changes? We can help you customize the layout, compare hybrid home and full log options, and discuss what’s included in a Ward package. If you’re still early in the process, it may also help to see how long it typically takes to build a log home. When you’re ready, contact us or call 800-341-1566.

Helpful Articles for Planning Your Log Home

First Floor
Loft Plan

Features and Options

  • 12/12 House roofs
  • 30 Ft. Shed Dormer, 6/12 Pitch
  • Large kitchen pantry
  • Offered as either a hybrid home package or a full log package
  • Custom layout changes available for all plans

*ALL PRICES SUBJECT TO CHANGE WITHOUT NOTICE. 

More Plans in the Premier Series

Cedar log home with stone foundation and large windows featured on the cover of the Ward Planning Guide.

View Our Planning Guide

Please leave your name and email and we will contact you to answer any questions.

0

My Cart

Your cart is currently empty.