Illustration of Coopersburg log home with porch and gables

Coopersburg

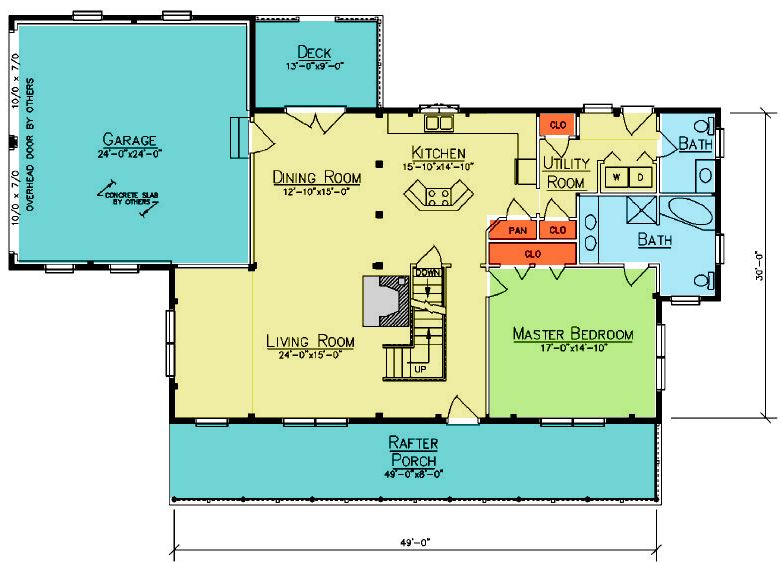
First Floor: 1455 sq ft
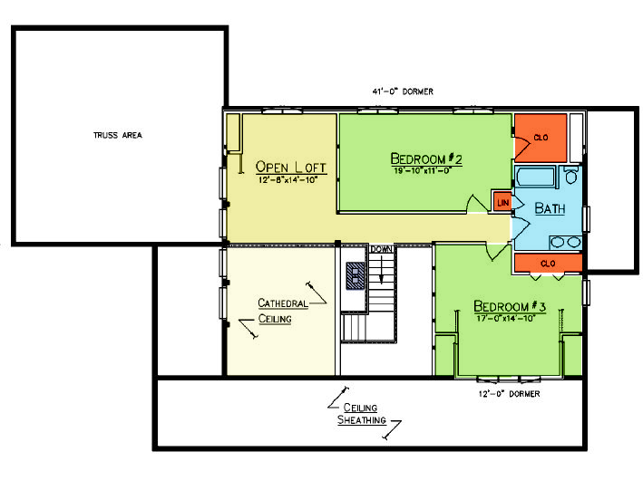
Loft: 807 sq ft
Bedrooms: 3
Baths: 2.5
Garage: 576 sq ft
Porch(es): 392 sq ft
Deck(s): 117 sq ft

Price: From $264,426 (Hybrid) or $287,644 (Log). From there, you can customize the details to fit your land and your goals.

Coopersburg Log Home Plan

The Coopersburg is a 2,262-square-foot cedar log home. Because of its traditional design, the Coopersburg would be perfect in a country setting or suburban neighborhood. This home features a large front porch, perfect for enjoying quiet time outdoors. Its charming gables add interest to the home and offer you an opportunity to showcase architectural windows. On the first floor, the master bedroom with its full bath provides privacy and comfort. The second-floor features two bedrooms with a walk-in closet, a full bath and an open loft perfect for extra living space.

Have Questions? We’re here to help.

Like the Coopersburg plan but want to make a few changes? We can help you customize the layout, compare hybrid home and full log options, and discuss what’s included in a Ward package. If you’re still early in the process, it may also help to see how long it typically takes to build a log home. When you’re ready, contact us or call 800-341-1566.

Helpful Articles for Planning Your Log Home

*Photos below are of a slightly modified Coopersburg

First Floor
Loft Plan

Features and Options

  • 41 Ft. Shed, 6/12 Rear dormer
  • 12 Ft. Front gable dormer
  • 12/12 Main roof
  • 5/12 Truss roof garage
  • Optional rear deck
  • Available in both a hybrid home and a full log version
  • Custom layout changes available for all plans

*ALL PRICES SUBJECT TO CHANGE WITHOUT NOTICE.

More Plans in the Premier Series

Cedar log home with stone foundation and large windows featured on the cover of the Ward Planning Guide.

View Our Planning Guide

Please leave your name and email and we will contact you to answer any questions.

0

My Cart

Your cart is currently empty.