Sketch of Charleston log home with wrap-around porch

Charleston

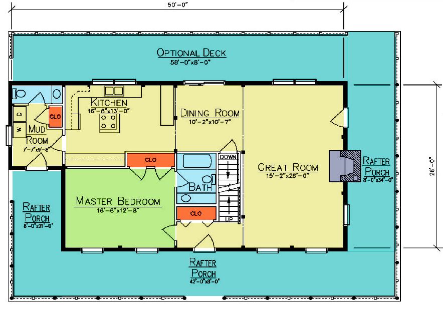
First Floor: 1196 sq ft
Loft: 506 sq ft
Bedrooms: 3
Baths: 2.5
Porch(es): 776 sq ft
Rear Deck: 464 sq ft

Price: From $205,292 (Hybrid) or $222,978 (Log). From there, you can customize the details to fit your land and your goals.

Charleston Log Home Plan

The Charleston is a 1,702 square foot cedar log home that features long, covered porches that provide ample space for large gatherings and allow you to enjoy outdoor living. The first floor features a large great room, kitchen and dining room. A mudroom with laundry facilities and a half-bath are convenient additions for busy families. The cathedral ceiling soars to the second floor, where you will find a balcony connected to an open loft, two bedrooms, and a full bath.

Have Questions? We’re here to help.

Like the Charleston plan but want to make a few changes? We can help you customize the layout, compare hybrid home and full log options, and discuss what’s included in a Ward package. If you’re still early in the process, it may also help to see how long it typically takes to build a log home. When you’re ready, contact us or call 800-341-1566.

Helpful Articles for Planning Your Log Home

*Photos below are of a modified Charleston

First Floor
Loft Plan

Features and Options

  • Open-Style floor plan
  • Main floor laundry/mud room
  • Wrap-Around 3/12 rafter porches
  • Multi-Use open loft area
  • 26 Ft. – 10 In. Shed roof, 3/12 Rear dormer
  • 3 – Front gabled dormers
  • 10/12 Main roof
  • Optional rear deck
  • Available in both a hybrid home and a full log version
  • Custom layout changes available for all plans

*ALL PRICES SUBJECT TO CHANGE WITHOUT NOTICE.

More Plans in the Premier Series

Cedar log home with stone foundation and large windows featured on the cover of the Ward Planning Guide.

View Our Planning Guide

Please leave your name and email and we will contact you to answer any questions.

0

My Cart

Your cart is currently empty.