Illustration of Allegany log home with garage

Allegany

First Floor: 1524 sq ft
Loft: 731 sq ft
Bedrooms: 3
Baths: 2.5
Garage: 576 sq ft

Price: From $240,492 (Hybrid) or $267,865 (Log). From there, you can customize the details to fit your land and your goals.

Allegany Log Home Floor Plan

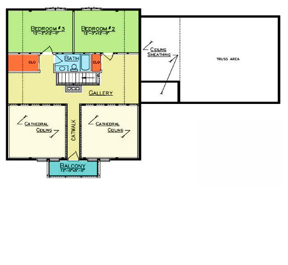
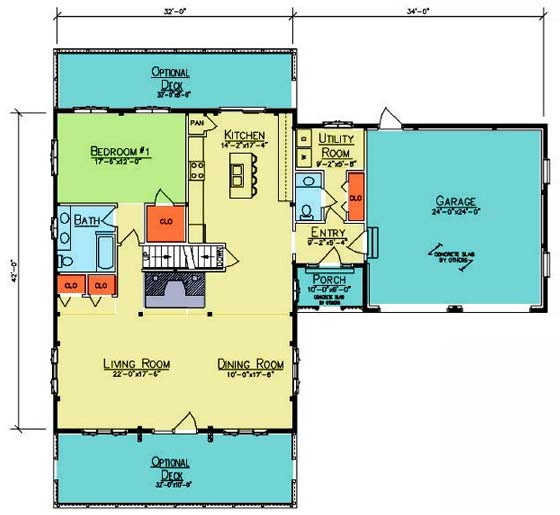
The Allegany is a 2,224 square foot cedar log home providing space, beauty and charm that is comfortable and perfect for families. Entry from both the porch and garage as well as a snack bar in the kitchen offers convenience for families on the go. The utility room and lavatory between the garage and kitchen are great places to clean up after time spent outdoors. On the first floor, the spacious master suite with its walk-in closet and adjacent bath provides both privacy and comfort. Upstairs, two bedrooms share a full bath, and a catwalk runs from the gallery to the front balcony.

Have Questions? We’re here to help.

Like the Allegany plan but want to make a few changes? We can help you customize the layout, compare hybrid home and full log options, and discuss what’s included in a Ward package. If you’re still early in the process, it may also help to see how long it typically takes to build a log home. When you’re ready, contact us or call 800-341-1566.

Helpful Articles for Planning Your Log Home

First Floor
Loft Plan

Features and Options

  • 12/12 House roof
  • 7/12 Truss utility and garage
  • First floor utility area
  • All casement-style windows
  • Optional decks
  • Main-level master bedroom with walk-in closet
  • This plan can be built as a hybrid home or a full log home
  • Custom layout changes available for all plans

*ALL PRICES SUBJECT TO CHANGE WITHOUT NOTICE.

More Plans in the Premier Series

Cedar log home with stone foundation and large windows featured on the cover of the Ward Planning Guide.

View Our Planning Guide

Please leave your name and email and we will contact you to answer any questions.

0

My Cart

Your cart is currently empty.