Front view of a two-story log home with balcony and stairs.

5465

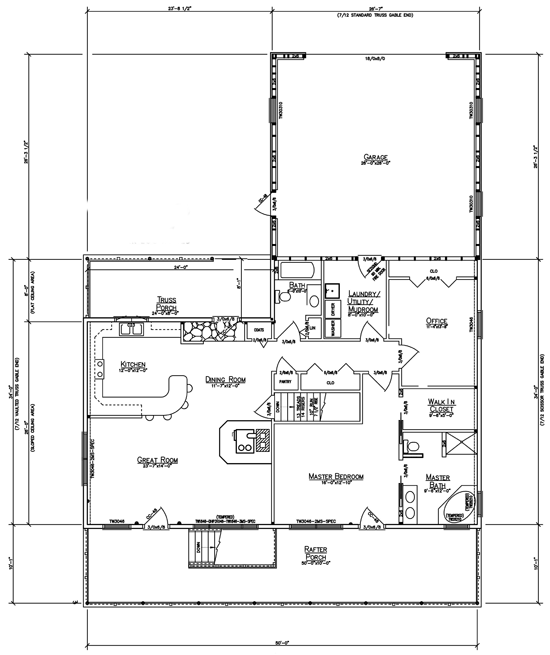
First Floor: 1506 sq ft
Loft: Not Included sq ft
Bedrooms: 1-2
Baths: 2
Garage: 676 sq ft
Porch: 692 sq ft

Price: Request a quote based on your package style

5465 Custom Log Home Plan

The 5465 is a cedar log home plan designed for comfortable one-floor living, featuring a private primary suite, a dedicated home office, and an open kitchen and living area. An optional walkout basement can add additional bedrooms, a family room, or a hobby space, giving this plan room to grow with you. The plan works well for homeowners who want a practical year-round home with room to customize.

Have Questions? We’re here to help.

Like the 5465 plan but want to make a few changes? We can help you customize the layout, compare hybrid home and full log options, and discuss what’s included in a Ward package. If you’re still early in the process, it may also help to see how long it typically takes to build a log home. When you’re ready, contact us or call 800-341-1566.

Helpful Articles for Planning Your Log Home

First Floor

Features and Options

  • Available as a hybrid home package or full log package
  • 7/12 Truss House
  • 7/12 Truss Garage
  • Dedicated home office
  • Optional walkout basement
  • Open-concept living, kitchen, and dining area
  • Custom layout changes available for all plans

More Plans in the Personalized Homes

Cedar log home with stone foundation and large windows featured on the cover of the Ward Planning Guide.

View Our Planning Guide

Please leave your name and email and we will contact you to answer any questions.

0

My Cart

Your cart is currently empty.