Front elevation of the 5451 cedar log home.

5451

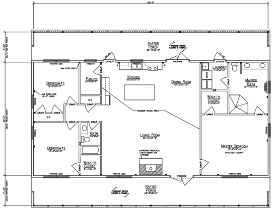
First Floor: 1860 sq ft
Loft: N/A sq ft
Bedrooms: 3
Baths: 2
Porches: 992 sq ft

Price: Request a quote based on your package style

5451 Custom Log Home Plan

Enjoy a spacious one-story home that works well for families who want everything on a single level. The open living, dining, and kitchen area keeps everyone together, with a large pantry off the kitchen for easy storage. The master suite is set on one side of the home for added privacy, while two additional bedrooms and a second bath are on the opposite side.

Have Questions? We’re here to help.

Like the 5451 plan but want to make a few changes? We can help you customize the layout, compare hybrid home and full log options, and discuss what’s included in a Ward package. If you’re still early in the process, it may also help to see how long it typically takes to build a log home. When you’re ready, contact us or call 800-341-1566.

Helpful Articles for Planning Your Log Home

First Floor

Features and Options

  • This plan can be built as a hybrid home or a full log home
  • 8/12 Truss Roof
  • Fully customizable to meet your needs
  • One-level ranch design for easy living
  • Large pantry
  • Two large porches
  • Open living, kitchen, and dining area

More Plans in the Personalized Homes

Cedar log home with stone foundation and large windows featured on the cover of the Ward Planning Guide.

View Our Planning Guide

Please leave your name and email and we will contact you to answer any questions.

0

My Cart

Your cart is currently empty.