Front view of the 5442 log home plan with porch.

5442

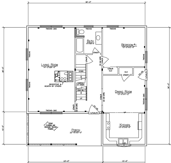
First Floor: 1062 sq ft
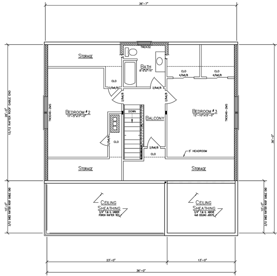
Loft: 644 sq ft
Bedrooms: 3
Baths: 2
Porch: 220 sq ft

Price: Request a quote based on your package style

5442 Custom Log Home Plan

The 5442 log home plan has a large living room to enjoy your guests. One bedroom is located on the first floor for those who prefer to avoid stairs and is perfect for aging in place. On the second floor, two additional bedrooms share a full bath, creating a comfortable area for family or visitors.

 

Have Questions? We’re here to help.

Like the 5442 plan but want to make a few changes? We can help you customize the layout, compare hybrid home and full log options, and discuss what’s included in a Ward package. If you’re still early in the process, it may also help to see how long it typically takes to build a log home. When you’re ready, contact us or call 800-341-1566.

Helpful Articles for Planning Your Log Home

First Floor
Loft Plan

Features and Options

  • Custom layout changes available for all plans
  • This plan can be built as a hybrid home or a full log home
  • 12/12 Rafter Roof
  • Three-bedroom, two-bath layout
  • Covered porch for outdoor living

More Plans in the Personalized Homes

Cedar log home with stone foundation and large windows featured on the cover of the Ward Planning Guide.

View Our Planning Guide

Please leave your name and email and we will contact you to answer any questions.

0

My Cart

Your cart is currently empty.