Architectural drawing of the 5308 plan exterior.

5308

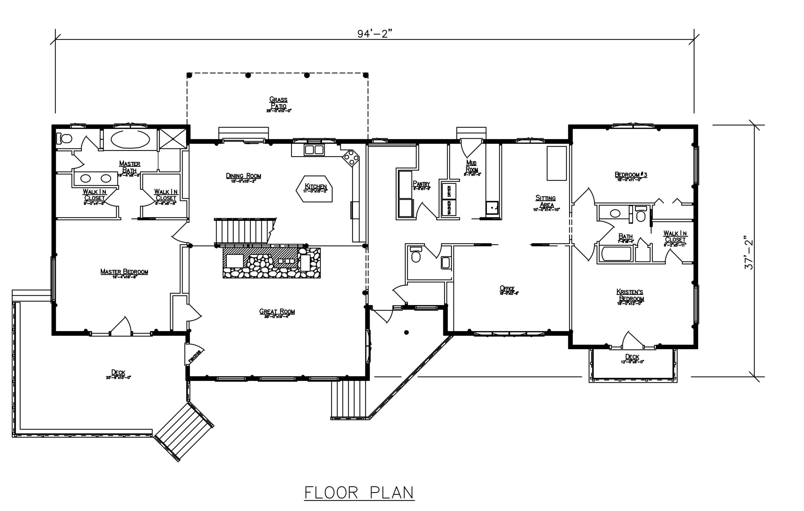
First Floor: 2865 sq ft
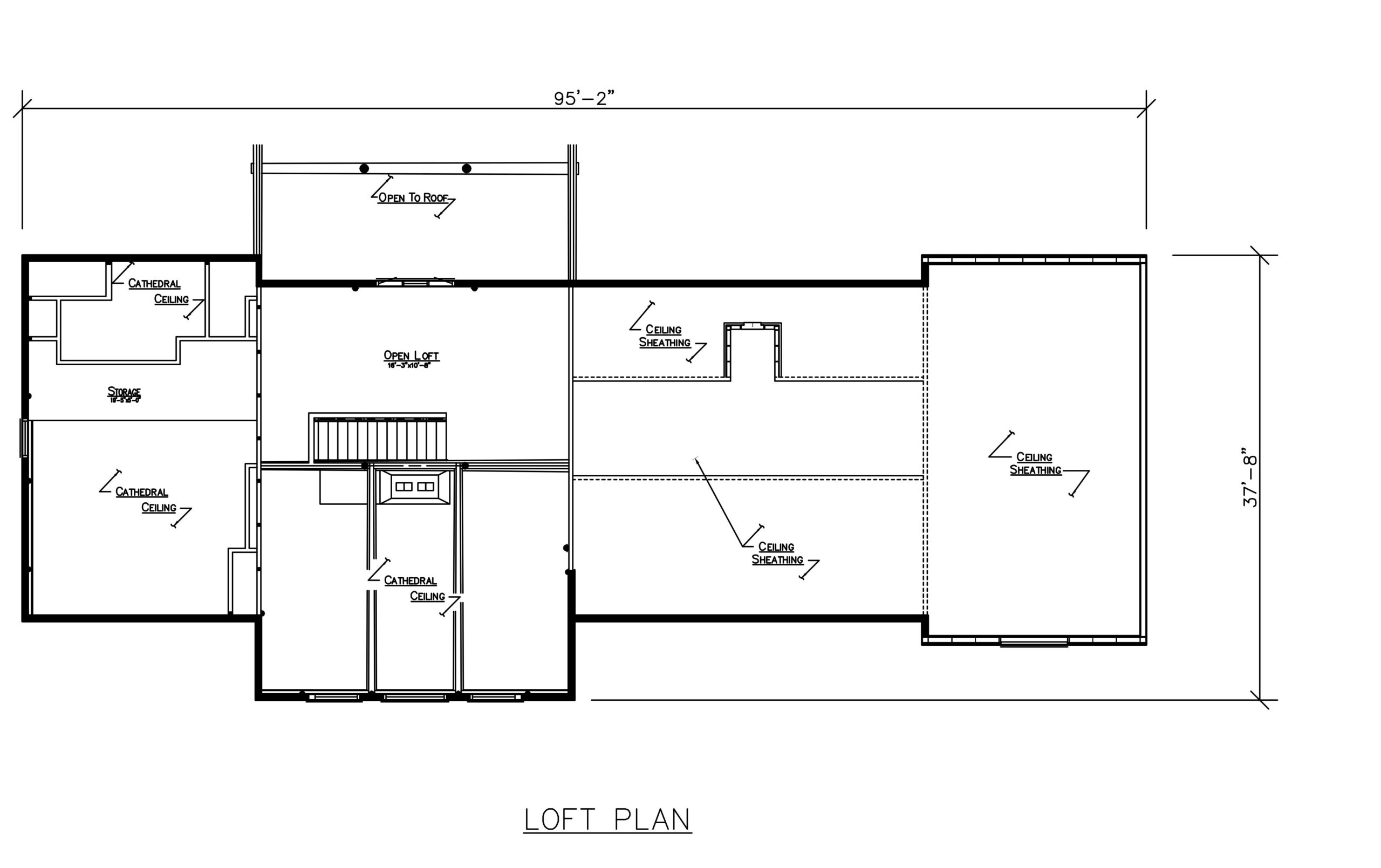
Loft: 500 sq ft
Bedrooms: 3
Baths: 2.5

Price: Request a quote based on your package style

5308 Log Home Plan

The 5308 plan is a log home that keeps most of the living spaces on one main level. A central great room with a fireplace opens to the dining room, kitchen, and a large rear patio, making it easy to move between the indoors and out. One wing holds the master suite with two walk-in closets and a large bath. The opposite side includes an office, two bedrooms, sitting area, mudroom, and an attached garage. An open loft above looks down over the great room and adds flexible space for guests or storage.

Have Questions? We’re here to help.

Like this plan but want to make a few changes? We can help you customize the layout, compare hybrid home and full log options, and discuss what’s included in a Ward package. If you’re still early in the process, it may also help to see how long it typically takes to build a log home. When you’re ready, contact us or call 800-341-1566.

Helpful Articles for Planning Your Log Home

First Floor
Loft Floor

Features and Options

  • 8/12 roof pitch
  • Customizable plan
  • Open kitchen, dining, and living areas for easy gathering
  • Large pantry
  • Spacious deck to enjoy the outdoors
  • Offered as either a hybrid home package or a full log package
  • Loft space for a play area, reading nook, or sleeping space

More Plans in the Personalized Homes

Cedar log home with stone foundation and large windows featured on the cover of the Ward Planning Guide.

View Our Planning Guide

Please leave your name and email and we will contact you to answer any questions.

0

My Cart

Your cart is currently empty.