Front view of the 4778 log home design

4778

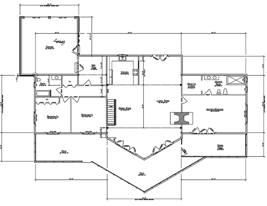
First Floor: 2596 sq ft
Loft: sq ft
Bedrooms: 3
Baths: 2
Porch: 270 sq ft
Decks: 860 sq ft

Price: Request a quote based on your package style

4778 Custom Log Home

This log home floor plan is designed for those who enjoy light, views, and open space. Its prow front and lots of glass bring the outdoors in, while the open floor plan makes it easy to gather in the main living area. Three bedrooms, with the master suite set apart from the others, offers both privacy and comfort, and a large front deck extends your daily living outside to enjoy the beauty of the outdoors.

Have Questions? We’re here to help.

Like the 4778 plan but want to make a few changes? We can help you customize the layout, compare hybrid home and full log options, and discuss what’s included in a Ward package. If you’re still early in the process, it may also help to see how long it typically takes to build a log home. When you’re ready, contact us or call 800-341-1566.

Helpful Articles for Planning Your Log Home

First Floor

Features and Options

  • Offered as either a hybrid home package or a full log package
  • Custom layout changes available for all plans
  • 5/12 Main Purlin Roof
  • 7/12 Truss Ells
  • Large front deck
  • Optional walkout basement
  • Ideal layout for views, lakes, or open land
  • Private master suite

More Plans in the Personalized Homes

Cedar log home with stone foundation and large windows featured on the cover of the Ward Planning Guide.

View Our Planning Guide

Please leave your name and email and we will contact you to answer any questions.

0

My Cart

Your cart is currently empty.