Illustration of Cedar Falls log home with garage

Cedar Falls

First Floor: 1040 sq ft
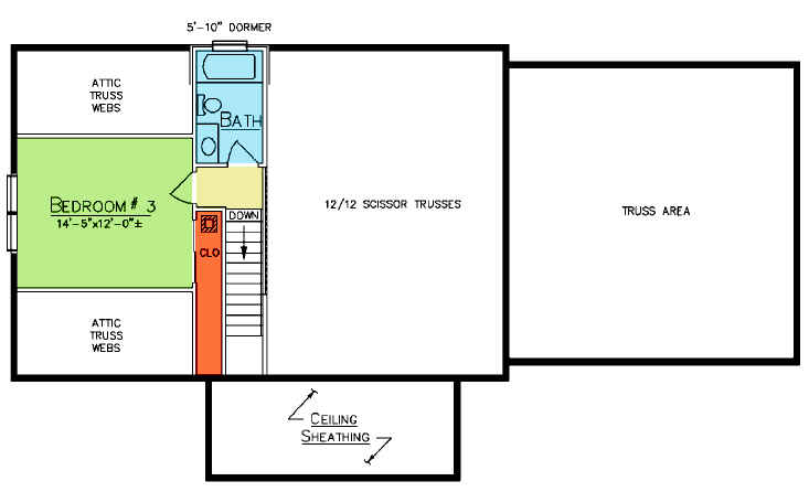
Loft: 266 sq ft
Bedrooms: 3
Baths: 2
Garage: 552 sq ft
Porch: 160 sq ft

Price: From $150,241 (Hybrid) or $164,289 (Log). From there, you can customize the details to fit your land and your goals.

Cedar Falls Log Home Plan

The Cedar Falls is styled for comfortable living with three bedrooms and two full baths in a mid-sized home. The attached two-car garage offers convenience and protection from the elements and opens directly into the kitchen.  Enjoy open concept living with the combined kitchen, dining and living area.  An affordable and lovely home for families and empty nesters alike.

Have Questions? We’re here to help.

Like the Cedar Falls plan but want to make a few changes? We can help you customize the layout, compare hybrid home and full log options, and discuss what’s included in a Ward package. If you’re still early in the process, it may also help to see how long it typically takes to build a log home. When you’re ready, contact us or call 800-341-1566.

Helpful Articles for Planning Your Log Home

First Floor
Loft Plan

Features and Options

  • 12/12 Attic trusses bedroom end
  • 12/12 Scissor trusses kitchen, dining, & living Room
  • 5/12 Standard truss garage
  • Available in both a hybrid home and a full log version
  • Custom layout changes available for all plans

*ALL PRICES SUBJECT TO CHANGE WITHOUT NOTICE. 

More Plans in the Cedar Valley Series

Cedar log home with stone foundation and large windows featured on the cover of the Ward Planning Guide.

View Our Planning Guide

Please leave your name and email and we will contact you to answer any questions.

0

My Cart

Your cart is currently empty.